XST型濕式脫硫除塵器
- 旋流水浴脫硫除塵器簡稱水除 ,又叫水浴除塵器 。在濕法沖激除塵器中,水浴除塵器是最受歡迎一種結構簡單、造價低,便于維護管理的除塵器。此種類型已歷經十五年以來的運行時間,充分...
- 咨詢熱線:13833733360
-
XST型濕式脫硫除塵器生產廠家介紹
【XST型濕式脫硫除塵器廠家】泊頭市凈化除塵設備廠【20年經驗】,專業做XST型濕式脫硫除塵器型號全,XST型濕式脫硫除塵器價格合理、國標排放、質保2年、免費勘測提供方案圖紙參數。
XST型濕式脫硫除塵器廠家要核實的鍋爐參數,例如是:燃煤鍋爐,規格(臥式、立式)送煤方式(鏈條式、人工式)還有鍋爐噸位大小、脫硫除塵器前衛鍋爐除塵器風量、風速、等,脫硫除塵器安裝地區、安裝空間等一系列參數,我們根據以上以上參數來幫你設計、選型、提供結構圖紙、技術參數等,有貴公司審核后我們安排做。
我公司擁有:繪圖部、技術部、研發部、制作部、質檢部、裝配部、安裝部、采購部、銷售部、售后服務部等。
除塵設備制作排序:看圖下料、檢驗下料尺寸、車間焊接、組裝焊接、綜合檢驗、整體完成后試機、噴漆、新產品出爐、發貨、現場安裝、客戶驗收、竣工完成。
擁有設備:除塵骨架拉絲機,骨架焊接機、車床、沖床、剪板機、焊接機、卷管機、等。
擁有:除塵布袋制造車間、除塵骨架制造車間、除塵設備制造車間等。
我們是一條龍制作、銷售、售后服務,質量有保證、中間外協加工少、減少了設備成本、又能控制產品質量、價格合理、歡迎你來咨詢訂購。
-
XST型濕式脫硫除塵器產品詳情
一、XST型濕式脫硫除塵器概述:
在濕法沖激除塵器中,水浴除塵器是最受歡迎一種結構簡單,造價低,便于維護管理的除塵器。此種類型已歷經十五年以來的運行時間,充分證明其運行的穩定可靠,且可因地制宜用磚石或混凝土砌筑結構,適用于較小容量鍋爐的煙氣凈化與脫硫。
為提高除塵脫硫效率,進一步對噴咀進行技術改造設計,把兩項流體引旋流機制,保進了膜化與凝聚的形成,強化了鼓泡作用進一步提高了除塵與脫硫效能,該項產品取得了國家專利。
二、XST型濕式脫硫除塵器除塵機理:
煙氣進入對噴咀內水面沖激、粗粒粉塵因慣性碰撞,被水液捕獲沉降,為沖激階段;噴咀縫隙旋流高速噴射,激發大量沿筒體旋流的氣泡和水花,強化了煙塵膜化與凝聚作用,氣泡不斷發生與破裂,形成強烈的旋流擾動,煙塵不斷被洗滌吸收在筒體邊沿沉降,形成泡沫作用階段;氣流穿過泡沫層進入被激起的水花與霧滴區,受到淋浴洗滌,煙氣得到了進一步吸收凈化,即淋浴的作用階斷;含一定霧滴的煙氣上升到第一級錐形脫水板時受到攔截,并沿壁流下,具有既脫水雙除塵的第四段作用,整個過程除塵與脫硫是統一的,SO2氣體充分的水液吸收劑,氣泡、水霧接觸完成了脫硫作用(見濕法除塵器脫硫)。
三、XST型濕式脫硫除塵器技術性能:
|
型號 |
鍋爐容量t/h |
||||||
|
2
|
4
|
6
|
8
|
10
|
15
|
20
|
|
|
風量范圍
m3/h |
4600-6000
|
9000-11000
|
10000-13500
|
16000-22000
|
24000-28000
|
33000-37500
|
46000-54000
|
|
除塵總效率%
|
95-98
|
||||||
|
脫硫效率%
|
75-80
|
||||||
|
阻力Pa
|
600-800
|
||||||
|
林格曼黑度
|
<1
|
||||||
|
分割粒經uM
|
<1
|
||||||
|
水耗I/m3
|
0.10-0.30
|
||||||
四、濕式除塵器的排灰與脫硫液循環槽
較大容量鍋爐機組(65T/h以上),且機組臺數較多時,排灰都由工程設計考慮,往往采用水沖灰至灰漿泵送至專用灰場或專設對容積較大的沉降灰池配機械抓斗出灰。
對中小容量的鍋爐機組配用濕式除塵器的出灰裝置,應有的原則:
(1)安全可靠,不因出灰機故障強迫停爐,而造成生產損失。
(2)維修周期長,與鍋爐機組檢修期相適應。
(3)經濟節能,水耗、電耗低。
(4)能與脫硫相配套兼顧使用。
排灰方式:
(1)放灰閥直排、沖灰、除灰與原有生產工藝的廢水物料的排棄結合處理。
(2)在除塵器灰斗上裝設出灰機,構成機組,排出的濕灰用車運走。使貯水灰斗的補水水位調節箱與吸收液循環槽聯接,讓灰斗水液與槽內吸收液成為一體,參與循環,對于生活鍋爐,比較適用該種系統形式。
(3)對較大容量鍋爐,灰量水量比較大,要求較高的安全可靠和持續運轉性。擬采用單獨設置的沉降貯灰池,根據灰池式,可配單或雙臺斗鏈(或刮板)出灰機或其它型式出灰機械。
除塵器灰斗排灰。直接進入沉降灰池,由除塵機將灰提出運走。貯灰池中的沉降水液與端部的循環槽脫硫液在脫硫過程中,形成一體循環。貯灰池,根據排灰水的容積,貯量,可用金屬結構或磚石砌筑或混凝土結構。
該種單獨設置沉降灰池的形式,大大提高了除塵器出灰運行的持續安全性,不會因出灰機問題,帶來不必要的停爐損失,給維修出灰機創造了有利條件。尤其更適應懸燃爐的出灰沉降要求,而且便于直觀出灰與管理工作。
-
XST型濕式脫硫除塵器價格行情
【XST型濕式脫硫除塵器價格】根據鍋爐參數,例如是:燃煤鍋爐,規格(臥式、立式)送煤方式(鏈條式、人工式)還有鍋爐噸位大小、脫硫除塵器前衛鍋爐除塵器風量、風速、等,脫硫除塵器安裝地區、安裝空間、材質、等一系列參數影響噴淋脫硫除塵器價格。可以快速準確快速報價、報裸價、含稅含運費價格、價格合理、出廠價、批發價。
-
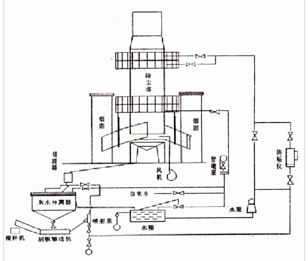
XST型濕式脫硫除塵器結構圖紙
XST型濕式脫硫除塵器結構圖紙免費提供,下面展示的是常見、常用的XST型濕式脫硫除塵器結構圖紙,其它分多個型號規格,一個是由于網頁空間條件限制不能依依展示,再一個大多數結構圖紙是根據現場的需要專門量身訂做的噴淋脫硫除塵器結構,所以說工業除塵器這類產品,上門測量是必須的、必要的。只有實地勘測的,才能提供貼切的XST型濕式脫硫除塵器結構圖紙。







